Building a garage is actually a lot of fun. While it basically a safe place to park, you can also have more in it, including small workshop, a den, and even a small guesthouse. The following floor plans and layout should give you enough inspiration for your project.
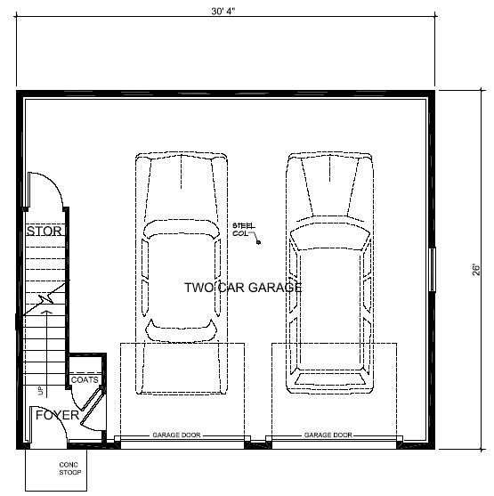
1. Two Car Garage and an Upper Floor
This garage fits for two cars parking at once, and it still has some more space to offer. On the back of the small building, there is a small workshop for your little project with a small toilet to keep it convenient. While this plan can be used for both attached and detached garage, it also offers an upper floor for any purpose you want to.

2. A Garage, a Carport, and an Upper Floor
This plan offers a nice layout as well. The garage should fit two cars or a car with other vehicles too. On the other side of the garage, there is a carport that will be convenient when a guest is coming over. This garage also offers an upper floor that you can use as a den or other possible purposes.

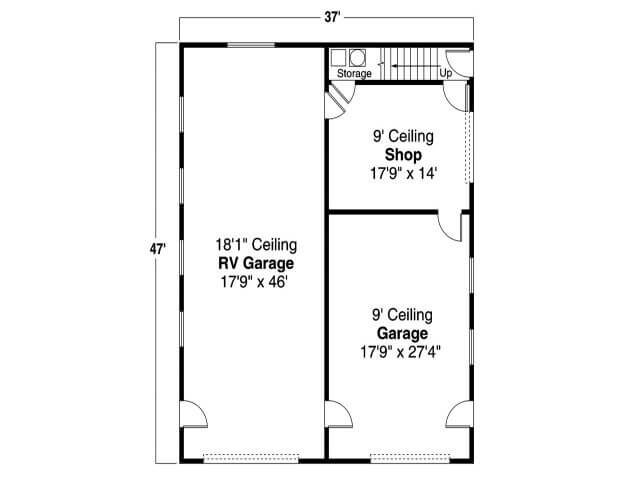
3. A Bachelor Garage
This plan is maybe preferred for so many single guys. The garage has two different doors, one is higher than the other. The higher ceiling garage is for vehicle like RV, while the other is perfect for other usual car and motorbike.
Half of the garage has an upper floor that houses a private suite, living room, kitchen, and a bath. This design is featured on many Hollywood movies, which makes it even better.


4. A Country Style Garage
Four cars can fit into this garage nicely, but it should make a spacious parking spot for up to three cars. Climbing from the stairway, we can access the storage loft which is built on one third of the garage upper floor.
On the left, there is a recreation room which can be used as a workshop or den as well with a full bath in it. Stepping outside, there is a porch which will be perfect for barbecue and beer time.


5. A Garage with a Bar
If you like to invite some friends over for beer, but you don’t want to disturb the family on the main house, this garage is perfect. It houses two cars in convenient while it has enough space for cabinets and storage too. On the back, you can fit in a small bar to serve your friends from. It is nice, casual, and neat.

6. Two Car Garage and a Small Guesthouse
The idea alone is very nice and convenient. This small two-car garage seems to be ordinary on the lower ground. However, it has stairs to the upper floor that houses a bedroom, a bath, small kitchen, eating area, and a living room. It can be a nice guesthouse, or a kind of private flat for your teen who already wants to live on his own.

7. A Garage with Three Access Door
For those who own two cars with different sizes, this plan will fit well. This garage is divided into two sections. One is longer than the other, while each section gets its own garage door. In the middle of both doors, there is a small door for you to get in and out of the garage practically.
This looks fine and nice at the same time, and you can actually fit in a small shop on the back side of the garage if you don’t have a longer car to park.

8. With Porch and Multi Use Area
It is always nice to have an additional space inside the garage. While it can be a small workshop, it can also be a small den for a little beer time. This garage even features a small porch that makes it looks fancier. Behind the door, this garage has a small multi use are before a small bath. The garage should fit two cars, and it is simple enough.

9. Ranch Garage
While it fits well to park two cars at once, this so much space is also used for a detached office or bathroom from the main house. If you make the office door glasses, it should frame the outdoor nicely. It makes a complete nice space considering the full bath added too, so it can be a nice small guest house as well.

10. Two Car Garage with a Shop
If you like to repair your own bike or machine, this plan is going to be a nice one for you. The two car garage isn’t too big, but it fits a small shop on the back on one of the corners. On the other corner, it has a small bath which is very nice. On the side, there is an access door facing a porch in which you can invite over some friends for some beers.

11. Two Side Accesses
This garage looks nothing like the rest. On the front, this garage features a usual door with two windows for indoor lighting and air flow. The car access is provided on the sides, left and right. If you only have one car, these accesses can be set as in and out way. The garage also features a small bath and a porch.

12. Apartment Garage
This plan will work even better if you plan to rent it out. This fits almost many people taste today. The lower floor is a pure one car garage with a utility closet is built. On the side, the stairs lead to a covered deck. The entrance leads to a small apartment with a kitchen, living room, a small bath, and this is beyond nice if you have a nice view as well.

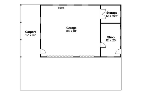
13. Prairie Garage
This garage occupies a large area, so the design is also spacious and generous. While the garage can house up to four cars nicely, you can also park them outside on the large carport. The garage is also completed with a little shop and tool storage which will keep this spacious design a neat one too.






